Pease Feed & Coal

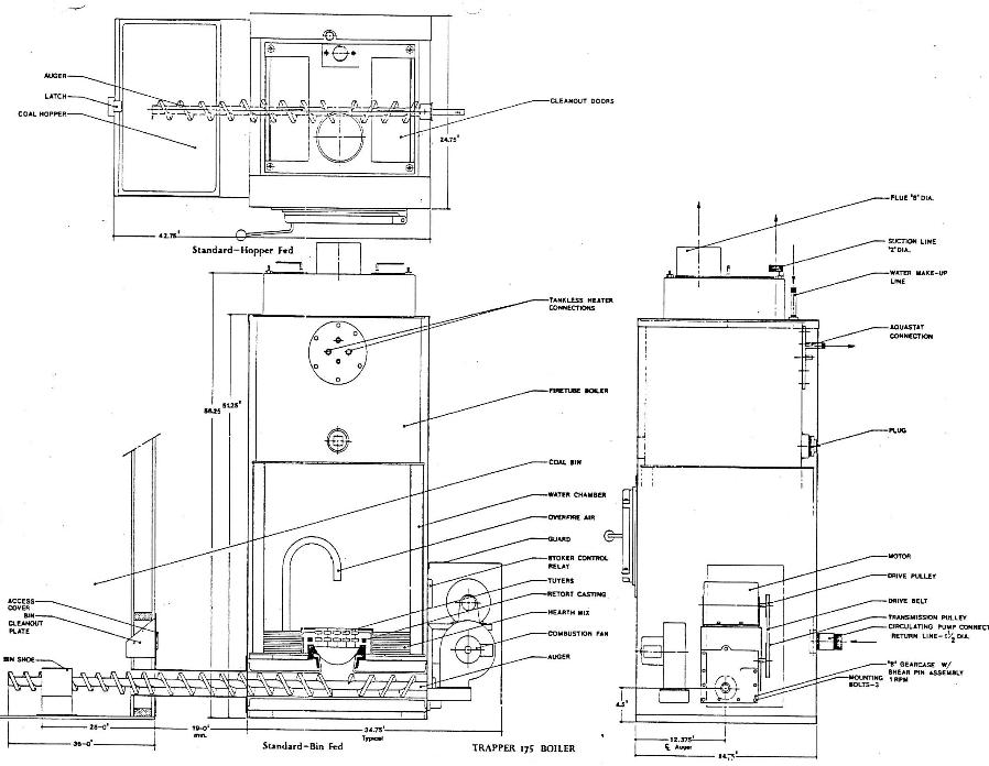
Trapper 105/175  Configuration Diagram